realtor phone number +1 (403) 701-9779
agent realty CIR Realty
403.271.0600
437 SW Alpine Calgary, Alberta T2Y0Z8, Calgary , T2Y0Z8
Listing ID: A2266495
Share
$499,900
Price
2
Bed
3
Bath
1,285
Sq. Ft.
Built: 2025
Data last updated: December 26, 2025 at 12:37pm
Quick Access
Photos
Video
Map

Property Description

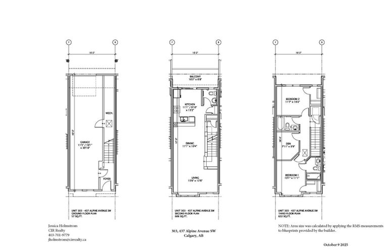
THERE’S A REASON ALPINE PARK IS GETTING TALKED ABOUT—AND IT’S NOT JUST THE ARCHITECTURE OR THE NEW URBAN VILLAGE VIBE. It’s the way this southwest Calgary neighbourhood brings together community, style, and walkability in a way that actually works. And if you’ve been waiting for the right foothold in this forward-thinking pocket, the Jasmine model at 303, 437 Alpine Avenue SW might be the one.This brand-new, THREE-STOREY TOWNHOME from Homes by Avi delivers 1,285 SQ FT of well-planned living space that feels both functional and refined. The WEST-FACING FRONT ENTRY opens to a simple, practical ground floor—just a crisp foyer, garage access, and the stairs leading up to the heart of the home. A DOUBLE ATTACHED TANDEM GARAGE keeps vehicles secure and storage organized, perfect for bikes, gear, or that extra freezer every household eventually needs.Up one level, the OPEN-CONCEPT KITCHEN, LIVING, AND DINING AREA keeps sightlines open and routines flowing. The kitchen pairs QUARTZ COUNTERS with a CONTEMPORARY TILE BACKSPLASH, a PANTRY, and a SPACIOUS BREAKFAST BAR that turns into a hub for everything from first light espresso to late-night takeout. Just off the kitchen, an EAST-FACING BALCONY STRETCHES OVER 16 FEET WIDE—perfect for sunny breakfasts or evening dinners that feel quietly removed from the street below.On the top floor, thoughtful zoning keeps the two bedrooms separated for privacy. The primary bedroom includes a WALK-IN CLOSET and a sleek 3-PIECE ENSUITE, while the second bedroom also features a WALK-IN CLOSET with easy access to a full bath. A VERSATILE DEN adds space for a home office, Peloton, or nursery, and the LAUNDRY ROOM is right where it should be—upstairs. Finishes throughout feel deliberate and elevated, with LUXURY VINYL PLANK FLOORING and cohesive design details that tie the main living space together.Outside, the exterior mixes MODERN MATERIALS and architectural lines, giving the home that contemporary “new urban village” character the ar ea is known for. Beyond the front door, the neighbourhood continues to grow into ONE OF CALGARY’S MOST DESIGN-SAVVY NEW COMMUNITIES—defined by its wide, tree-lined streets, connected green boulevards, and a future Village Centre bringing shops and energy to the core.POSSESSION AVAILABLE MID-NOVEMBER. Book your showing and see why this phase of Alpine Park has everyone talking. • PLEASE NOTE: Photos are virtual renderings – fit and finish may differ on completed spec. (id:26452)

Townhouse located at 437 SW Alpine Calgary, Alberta T2Y0Z8. It has 2 beds, 3 bathrooms, and is 1285 square feet. The property was built in 2025. 437 SW Alpine Calgary, Alberta T2Y0Z8 is in the Alpine Park neighborhood.
Show More keyboard_arrow_down
close
Jessica Holmstrom
403-701-9779

Here to help with your Real Estate inquiries

Jessica Holmstrom
403-701-9779
chat
Message
By sharing this listing, you have agreed with roomvu's terms and conditions of usage
$3,703.37
Monthly
$878,400
Total Mortgage
$219,600
Down Payment